Layanan desain denah di Banyuasin menjadi solusi terbaik bagi masyarakat yang ingin membangun rumah, kantor, atau bangunan komersial dengan hasil yang rapi, efisien, dan estetis. Dengan memanfaatkan layanan profesional, Anda bisa mendapatkan rancangan denah yang sesuai kebutuhan, memperhitungkan fungsi ruang, kenyamanan, serta kondisi lahan. Banyak penyedia jasa kini menawarkan layanan perencanaan denah di Banyuasin dengan pendekatan modern dan teknologi visual 3D untuk mempermudah pemahaman klien terhadap rancangan bangunan mereka.
Layanan desain denah di Banyuasin tidak hanya berfokus pada gambar dua dimensi, tetapi juga memberikan konsultasi mendalam terkait kebutuhan penghuni, arah cahaya, sirkulasi udara, hingga efisiensi biaya pembangunan. Dengan desain yang matang, pembangunan bisa berjalan lancar tanpa banyak revisi di lapangan.
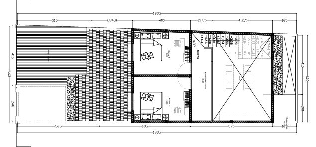
Desain Denah Rumah Minimalis di Banyuasin
Desain denah rumah minimalis di Banyuasin menjadi pilihan utama masyarakat urban yang menginginkan hunian fungsional, rapi, dan hemat biaya. Konsep minimalis berfokus pada kesederhanaan bentuk dan efisiensi ruang tanpa mengurangi kenyamanan. Desain ini sangat cocok diterapkan di Banyuasin yang banyak memiliki kawasan perumahan dengan ukuran lahan terbatas.
Ciri khas utama dari denah rumah minimalis adalah tata letak ruang yang efisien dan tidak berlebihan. Setiap ruangan memiliki fungsi yang jelas dan saling terhubung dengan baik. Biasanya, ruang tamu digabungkan dengan ruang makan dan dapur untuk menciptakan kesan luas. Penempatan jendela besar juga menjadi elemen penting agar cahaya alami masuk dengan optimal.
Selain efisiensi ruang, desain minimalis juga memperhatikan aliran udara dalam rumah. Dengan ventilasi silang yang baik, udara segar bisa masuk dan keluar dengan lancar, sehingga suhu di dalam rumah tetap nyaman tanpa ketergantungan pada pendingin ruangan. Hal ini sejalan dengan gaya hidup hemat energi yang kini banyak diadopsi masyarakat Banyuasin.
Material yang digunakan dalam rumah minimalis umumnya mudah dirawat dan tidak membutuhkan banyak dekorasi. Warna-warna netral seperti putih, abu-abu, dan krem sering digunakan untuk memberikan kesan bersih dan elegan. Beberapa pemilik rumah juga menambahkan aksen kayu atau tanaman hias untuk menambah nuansa alami.
Keunggulan desain denah minimalis adalah fleksibilitasnya. Denah ini mudah disesuaikan dengan berbagai ukuran lahan dan kebutuhan penghuni. Bagi keluarga kecil, rumah satu lantai dengan dua kamar tidur sudah cukup nyaman. Namun, bagi keluarga besar, desain minimalis dua lantai bisa memberikan tambahan ruang tanpa mengurangi kesederhanaan desain.
Dengan perencanaan denah yang matang, rumah minimalis di Banyuasin tidak hanya terlihat modern, tetapi juga memberikan kenyamanan dan efisiensi dalam penggunaan ruang.
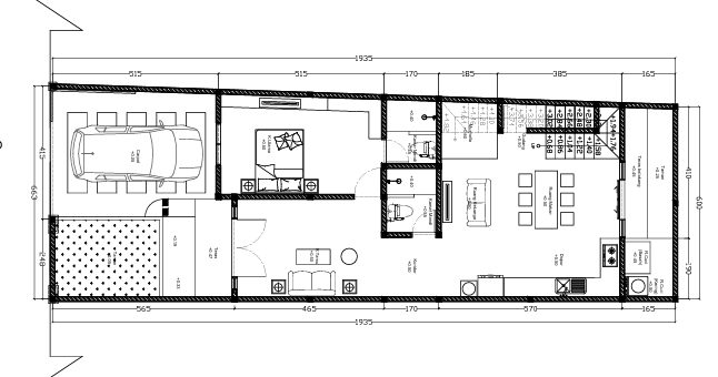
Konsep Desain Denah Tropis di Banyuasin
Desain denah tropis sangat relevan diterapkan di Banyuasin karena daerah ini memiliki iklim panas dan lembap. Konsep tropis berfokus pada keseimbangan antara kenyamanan termal, pencahayaan alami, dan sirkulasi udara. Melalui desain denah yang tepat, rumah dapat tetap sejuk dan hemat energi tanpa bergantung pada pendingin buatan.
Ciri utama dari desain denah tropis adalah orientasi bangunan yang mempertimbangkan arah sinar matahari. Biasanya, ruang-ruang utama ditempatkan di sisi yang tidak langsung terkena panas berlebih. Bukaan jendela besar, ventilasi silang, serta atap tinggi menjadi elemen penting agar udara dapat mengalir bebas di dalam rumah.
Selain faktor iklim, desain tropis juga mengutamakan hubungan antara ruang dalam dan luar. Teras, taman dalam rumah, dan area semi terbuka seperti ruang santai menjadi bagian dari denah untuk menghadirkan kesejukan alami. Desain seperti ini banyak ditemukan di Banyuasin karena cocok dengan karakter masyarakat yang suka berkumpul di area terbuka.
Material bangunan juga disesuaikan dengan kondisi cuaca setempat. Misalnya, penggunaan batu alam, kayu, dan dinding bata ekspos yang dapat menyerap panas dan menjaga suhu ruangan tetap stabil. Lantai dengan bahan keramik atau granit juga membantu menjaga kesejukan ruang di siang hari.
Selain fungsional, desain tropis modern kini juga memadukan unsur estetika kontemporer. Penggunaan garis tegas, warna netral, serta penataan furnitur minimalis membuat rumah tropis terlihat modern tanpa kehilangan nuansa alami.
Dengan desain denah tropis yang tepat, rumah di Banyuasin bisa menjadi tempat tinggal yang nyaman, hemat energi, dan selaras dengan lingkungan sekitar.
Kesalahan Umum dalam Membuat Desain Denah Rumah
Banyak orang di Banyuasin yang membuat kesalahan ketika merancang denah rumah tanpa bantuan profesional. Salah satu kesalahan umum adalah kurang memperhatikan arah matahari dan ventilasi. Akibatnya, rumah menjadi panas dan pengap karena sirkulasi udara tidak berjalan baik. Padahal, hal ini bisa dihindari dengan perencanaan denah yang mempertimbangkan orientasi bangunan.
Kesalahan lainnya adalah pembagian ruang yang tidak proporsional. Beberapa pemilik rumah terlalu fokus pada ukuran ruang tamu yang besar, namun mengabaikan ruang penting lainnya seperti dapur atau kamar mandi. Denah yang tidak seimbang bisa membuat rumah terasa tidak nyaman dan sulit diatur.
Kurangnya ruang penyimpanan juga sering menjadi masalah. Dalam desain denah yang ideal, area penyimpanan harus direncanakan sejak awal agar rumah tetap rapi dan fungsional. Tidak jarang, orang baru menyadari kebutuhan ini setelah rumah selesai dibangun, yang kemudian menimbulkan penyesalan.
Selain itu, penggunaan dinding yang berlebihan dapat membuat ruangan terasa sempit dan kaku. Tren modern kini lebih mengedepankan konsep terbuka agar ruangan terasa lega dan mudah diakses. Kesalahan lain yang sering terjadi adalah tidak memperhitungkan aksesibilitas antar ruang, terutama bagi penghuni lanjut usia atau anak-anak.
Kesalahan desain denah juga bisa berdampak pada biaya pembangunan. Misalnya, jika tata letak instalasi air dan listrik tidak direncanakan dengan baik, maka akan memerlukan biaya tambahan untuk perbaikan atau perubahan. Oleh karena itu, menggunakan jasa desainer profesional di Banyuasin menjadi langkah bijak agar semua aspek diperhitungkan dengan cermat sejak awal.
Peran Teknologi dalam Layanan Desain Denah di Banyuasin
Perkembangan teknologi telah mengubah cara desainer membuat dan menyajikan denah bangunan di Banyuasin. Kini, proses perancangan tidak lagi dilakukan secara manual, melainkan menggunakan perangkat lunak desain seperti AutoCAD, SketchUp, dan Revit. Dengan teknologi ini, hasil desain menjadi lebih presisi, realistis, dan mudah dimodifikasi sesuai kebutuhan klien.
Teknologi visualisasi 3D juga memainkan peran besar dalam layanan desain denah di Banyuasin. Klien dapat melihat tampilan bangunan dari berbagai sudut seolah-olah sudah berdiri nyata. Hal ini membantu mereka memahami proporsi ruang, pencahayaan, dan tata letak sebelum proses pembangunan dimulai.
Selain itu, banyak desainer kini menggunakan teknologi rendering untuk memberikan tampilan realistis terhadap interior dan eksterior bangunan. Klien bisa menilai warna, material, hingga efek cahaya alami pada ruangan. Teknologi ini membuat komunikasi antara desainer dan klien menjadi lebih efektif karena keduanya memiliki gambaran visual yang sama.
Peran teknologi juga terlihat dalam tahap kolaborasi. Desainer dan kontraktor bisa saling berbagi file digital untuk memastikan desain diterapkan dengan benar di lapangan. Bahkan, beberapa jasa di Banyuasin sudah menggunakan sistem cloud agar dokumen proyek bisa diakses kapan saja dan di mana saja.
Dengan adanya kemajuan teknologi, layanan desain denah di Banyuasin menjadi lebih efisien, transparan, dan profesional. Hasil desain tidak hanya akurat, tetapi juga lebih cepat selesai dan mudah disesuaikan dengan permintaan klien.
Pengertian Layanan Desain Denah di Banyuasin

Layanan desain denah di Banyuasin adalah jasa yang membantu Anda membuat rancangan tata ruang bangunan berdasarkan fungsi dan kebutuhan pengguna. Denah merupakan panduan penting dalam pembangunan karena menggambarkan posisi ruangan, ukuran, arah bukaan, dan hubungan antar ruang.
Dengan menggunakan layanan desain denah di Banyuasin, Anda dapat memastikan setiap meter persegi lahan termanfaatkan secara optimal. Hal ini sangat penting, terutama untuk lahan sempit yang memerlukan strategi penataan ruang yang efisien dan nyaman.
Selain itu, penyedia jasa di Banyuasin biasanya menawarkan desain yang sudah menyesuaikan dengan kondisi iklim tropis, arah matahari, serta kebutuhan pencahayaan alami. Maka, hasil akhir bukan hanya bagus secara visual, tapi juga nyaman dan hemat energi.
Manfaat Menggunakan Layanan Desain Denah di Banyuasin
Ketika Anda menggunakan layanan desain denah di Banyuasin, ada berbagai manfaat yang bisa didapatkan. Mulai dari efisiensi biaya hingga peningkatan nilai estetika bangunan.
Efisiensi Ruang dan Fungsi
Melalui desain yang baik, Anda dapat menyesuaikan ukuran setiap ruangan dengan kebutuhan penghuni. Misalnya ruang keluarga yang terhubung dengan dapur terbuka akan memberikan kesan luas dan nyaman.
Hemat Biaya Pembangunan
Dengan rancangan yang matang, revisi di lapangan bisa diminimalisir. Setiap elemen sudah diperhitungkan sejak awal, mulai dari material, ukuran, hingga tata letak ruangan.
Desain Estetis dan Modern
Layanan desain denah di Banyuasin umumnya juga menyediakan visualisasi 3D agar Anda dapat melihat gambaran akhir bangunan. Dengan begitu, Anda bisa menilai apakah desainnya sesuai selera atau perlu disesuaikan lagi.
Nilai Jual Properti Lebih Tinggi
Bangunan yang memiliki desain denah yang baik akan memiliki nilai jual lebih tinggi di pasaran. Tata ruang efisien membuat properti terasa luas, nyaman, dan menarik secara visual.
Proses Layanan Desain Denah di Banyuasin
Penyedia layanan desain denah di Banyuasin biasanya memiliki tahapan yang jelas dalam bekerja. Proses ini memastikan hasil akhir sesuai keinginan dan kondisi lahan di lapangan.
Tahap pertama adalah konsultasi antara klien dan desainer untuk membahas kebutuhan, gaya desain, luas bangunan, serta anggaran. Setelah itu, desainer melakukan survei lapangan untuk menganalisis karakteristik lahan dan lingkungan sekitar.
Tahapan berikutnya adalah pembuatan sketsa dan konsep denah. Di sini, desainer memberikan beberapa alternatif rancangan yang menggambarkan pembagian ruang utama seperti ruang tamu, dapur, kamar tidur, dan area servis. Setelah konsep disetujui, dilakukan revisi hingga diperoleh desain final yang siap digunakan.
Dalam tahap akhir, penyedia layanan desain denah di Banyuasin biasanya juga menyediakan visualisasi 3D agar klien dapat memahami bentuk akhir bangunan sebelum pembangunan dimulai.
Tips Memilih Layanan Desain Denah di Banyuasin
Agar tidak salah pilih, berikut beberapa tips memilih penyedia layanan desain denah di Banyuasin yang profesional dan terpercaya.
Cek Portofolio
Pastikan penyedia jasa memiliki portofolio lengkap serta pengalaman mengerjakan proyek serupa di Banyuasin atau daerah lain. Dari portofolio, Anda bisa menilai gaya desain dan kualitas hasil kerjanya.
Perhatikan Proses dan Komunikasi
Pilih penyedia jasa yang transparan dalam menjelaskan proses kerja dan biaya. Komunikasi yang baik antara klien dan desainer akan menghasilkan rancangan sesuai kebutuhan.
Revisi yang Fleksibel
Layanan desain denah di Banyuasin yang profesional biasanya memberikan kesempatan revisi tanpa biaya tambahan selama tahap pengembangan konsep.
Gunakan Backlink Terkait
Anda bisa menelusuri informasi lebih lanjut mengenai jasa rancangan denah di Banyuasin untuk menemukan penyedia terbaik dengan reputasi baik.
Estimasi Biaya Layanan Desain Denah di Banyuasin
Biaya layanan desain denah di Banyuasin bisa bervariasi tergantung pada luas bangunan, kompleksitas desain, serta tambahan layanan seperti gambar kerja dan visualisasi 3D.
Beberapa faktor yang memengaruhi biaya antara lain luas bangunan, jumlah ruangan, gaya desain, jumlah revisi, dan kebutuhan gambar teknis. Untuk rumah sederhana, harga desain biasanya berkisar Rp3.000.000–Rp7.000.000.
Keuntungan Menggunakan Desainer Profesional di Banyuasin
Menggunakan jasa desain denah profesional akan membuat proses pembangunan lebih efisien dan minim kesalahan. Desainer profesional memahami ukuran ideal setiap ruang, sirkulasi udara, dan pencahayaan alami agar ruangan terasa nyaman.
Selain itu, Anda juga akan mendapatkan dokumentasi lengkap berupa file gambar denah dan gambar kerja. Layanan desain denah di Banyuasin sering pula menyediakan konsultasi tambahan selama proses pembangunan agar hasil akhir sesuai rencana.
Tantangan dalam Pembuatan Desain Denah di Banyuasin

Merancang denah yang baik membutuhkan ketelitian dan perencanaan yang matang. Banyuasin memiliki kondisi geografis yang beragam, termasuk lahan miring dan area rawa, sehingga memerlukan strategi desain yang sesuai agar bangunan tetap kokoh dan aman.
Koordinasi dengan kontraktor juga penting karena seringkali desain tidak diikuti sepenuhnya di lapangan. Selain itu, tiap penghuni memiliki kebutuhan unik, jadi desain harus menyesuaikan gaya hidup dan jumlah penghuni.
Studi Kasus Penerapan Desain Denah di Banyuasin
Salah satu contoh penerapan layanan desain denah di Banyuasin adalah pada rumah tropis satu lantai dengan konsep terbuka. Desainer menempatkan ruang tamu, dapur, dan ruang makan dalam satu area agar sirkulasi udara lebih baik dan ruangan terasa luas.
Untuk proyek renovasi rumah lama, desainer membantu menata ulang ruangan agar lebih efisien, seperti mengubah ruang tertutup menjadi area terbuka atau menambah kamar sesuai kebutuhan keluarga.
Sementara pada bangunan komersial seperti kafe, layanan desain denah di Banyuasin membantu menata area pengunjung dan dapur agar alur kerja lebih efisien dan nyaman.
Alasan Harus Memilih Layanan Desain Denah di Banyuasin
Layanan desain denah di Banyuasin memberikan solusi menyeluruh bagi Anda yang ingin membangun hunian, kantor, atau tempat usaha. Dengan desain yang matang, Anda tidak hanya mendapatkan bangunan yang indah, tetapi juga fungsional dan nyaman.
Menggunakan penyedia jasa profesional membantu Anda menghindari kesalahan teknis dan meningkatkan kualitas bangunan. Dengan adanya jasa desain ruang di Banyuasin, Anda bisa memulai proyek pembangunan dengan lebih percaya diri dan hasil yang optimal.
Tentang Pusat Interior Medan
Sebagai penutup, bagi Anda yang mencari perusahaan interior terpercaya setelah tahap desain denah, Pusat Interior Medan adalah pilihan tepat.
Pusat Interior Medan merupakan perusahaan yang bergerak di bidang jasa interior, custom interior, dan desain interior profesional. Perusahaan ini melayani berbagai kebutuhan desain untuk rumah tinggal, kantor, hingga ruang komersial di seluruh Indonesia, termasuk wilayah Medan dan sekitarnya.
Pusat Interior Medan memiliki keunggulan dalam memberikan layanan interior yang disesuaikan dengan karakter dan kebutuhan klien. Mereka tidak hanya mendesain tampilan ruangan, tetapi juga memastikan setiap elemen interior terintegrasi dengan denah bangunan yang telah dirancang sebelumnya.
Tim desainer dan pengrajin di Pusat Interior Medan berpengalaman serta memiliki keahlian tinggi dalam menciptakan hasil akhir yang presisi, estetis, dan tahan lama. Selain itu, perusahaan ini juga menyediakan layanan konsultasi dari tahap konsep hingga instalasi akhir, memastikan klien mendapatkan pengalaman layanan yang menyeluruh dan profesional.
Alamat: KOMP. SETIA BUDI POINT Jl. Setia Budi No.15 BLOK C, Tj. Sari, Kec. Medan Selayang, Kota Medan, Sumatera Utara 20132
Admin 1: 0821-8572-5896
Admin 2: 0877-0006-0961

